DRO
Drehrohrofen-Dichtsystem

DRO
Drehrohrofen-Dichtsystem

DRO <br/>Drehrohrofen-Dichtsystem
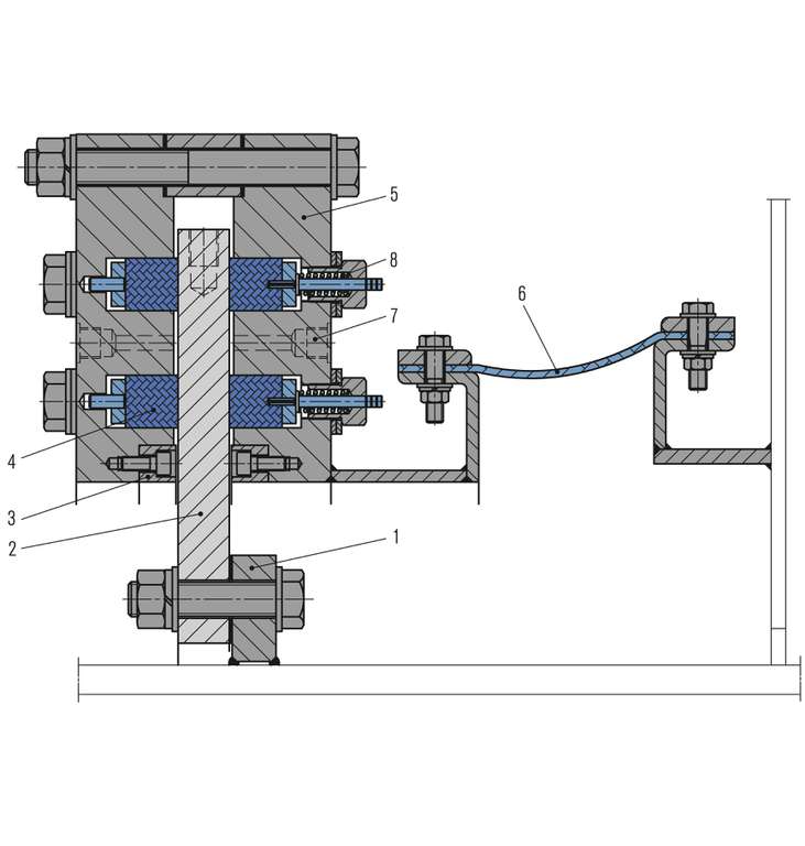
Einzeldichtung

Pos. Benennung
1 Befestigungsflansch (Drehrohr)
2 Dichtscheibe (rotierend)
3 Bronzegleitring
4 Packungsring (statisch)
5 Gehäuse
6 Kompensator
7 Befederungssystem
8 Thermofühleranschluss
9 Spülanschluss

DRO
Drehrohrofen-Dichtsystem

Merkmale

  • Permanent befederte Dichtschnüre (selbst nachstellend) für kontinuierlichen, optimalen Kontakt zur Dichtscheibe, mit optischer Verschleißanzeige
  • Sperrgasbeaufschlagung möglich
  • Optionaler Staubaustrag am Kompensator
  • Optionaler Spülanschluss zur Entfernung von Staubablagerungen an der Dichtscheibe
  • Doppeltwirkend angeordnete Dichtringe für Sperrung mit prozessverträglichem Gas, oder Absaugung toxischer und aggressiver Gase
  • Breiter Anwendungsbereich durch Verwendung modernster Werkstoffe

Vorteile

  • Reduzierung der Schadstoffemission
  • Saubere Rückstandsverbrennung
  • Kein partielles Unterschreiten der zur Rückstandsverbrennung benötigten Temperatur durch Falschlufteinzug (keine Dioxinbildung)
  • Sicherer Betrieb
  • Deutliche Einsparung von Primärenergie
  • Lange Standzeiten bei geringem Verschleiß
  • Sicher zu planende Stillstandszeiten (z.B. jährliche Revisionen)
  • Nachrüstbar in bestehenden Anlagen

Einsatzbereich

Durchmesser:
d1 = 2.000… 8.000 mm (78“ … 315“)
Druck: p = -50 … +250 mbar (-0,72 … 3,62 PSI)
Temperatur: t = max. Oberflächentemperatur des Ofens 300 °C (572 °F)
Drehzahl: … 2,5 m/s (8,2 ft/s)
Radialbeweglichkeit: … 35 mm (1,38“)*
Axialbeweglichkeit: … 150 mm (5,91“)*

* Größere Werte möglich, bitte anfragen.

Werkstoffe

Metallische Teile:
Stahl S235JR (St 37-2 / 1.0037),
CrNiMo-Stahl (1.4571)

Andere Werkstoffe auf Anfrage.

Funktionsbeschreibung

Das Dichtsystem besteht aus einem mit dem Drehrohr verschweißten Grundflansch. Über die mit dem Grundflansch verschraubte Dichtscheibe greifen die miteinander verbundenen Gehäusehälften. Je nach Anforderung werden diese mit zwei oder vier Dichtungsringen ausgeführt, die über einen Druckring an die Dichtscheibe gedrückt werden. Der erforderliche Anpressdruck für die Dichtungsringe wird durch Federn erzielt.
Axiale Veränderungen des Drehrohres durch Wärmeausdehnung und zwangsläufig geführter Ofenwanderung werden von einem speziell für das jeweilige Verfahren ausgelegten Kompensator aufgenommen. Das Mitdrehen der Dichtungsträger wird durch geeignete, seitlich dafür angebrachte Drehmomentstützen verhindert.
Das komplette Dichtsystem, mit Ausnahme der Dichtscheibe, ist frei beweglich und läuft mittels Tragrollen in diesen Stützen. Die Dichtung kann dadurch allen Ofenbewegungen folgen und die Dichtheit bleibt dabei voll erhalten.
Radiale Auslenkungen des Drehrohrofens, z.B. durch Ovalität werden durch ein mehr oder minder tiefes Eintauchen der Dichtscheibe in das Dichtungsgehäuse ausgeglichen.



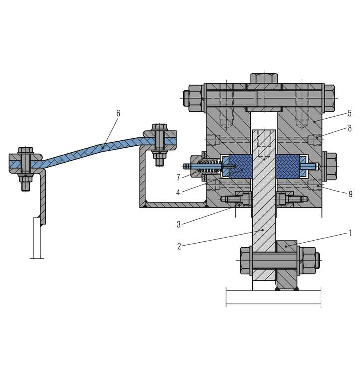
Produktvarianten

DRO Doppeldichtung

Pos. Benennung
1 Befestigungsflansch (Drehrohr)
2 Dichtscheibe (rotierend)
3 Bronzegleitring
4 Packungsring (statisch)
5 Gehäuse
6 Kompensator
7 Spülanschluss
8 Befederungssystem

Ähnliche Produkte

Kontakt

Individuelle Lösung anfragen

Wir entwickeln und produzieren kundenspezifische Sonder- und Einzellösungen für jeden Anwendungsfall.

Experte kontaktieren Referenzprojekte anzeigen
Zurück zur Übersicht