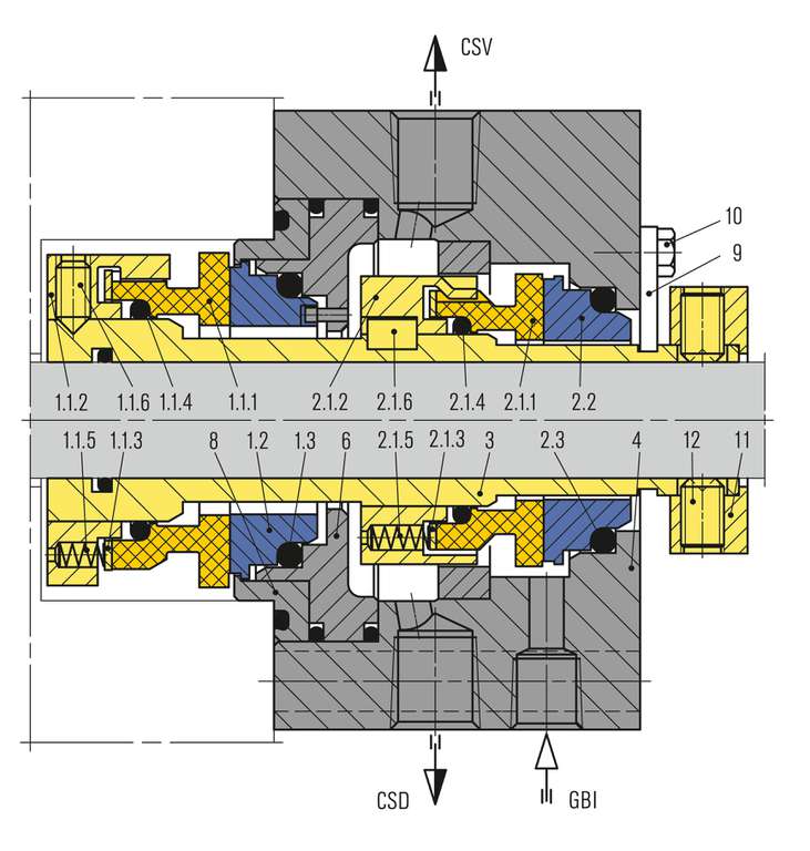
Item Description
1.1.1, 2.1.1 Seal ring
1.1.2, 2.1.2 Driver
1.1.3, 2.1.3 Thrust ring
1.1.4, 1.3, 2.1.4, 2.3 O-Ring
1.1.5, 2.1.5 Spring
1.1.6, 12 Set screw
1.2, 2.2 Mating ring
2.1.6 Key
3 Seal sleeve
4 Gland plate
6 Insert
8 Fixing ring
9 Setting device
10 Hexagon bolt
11 Set ring


CSV Containment seal vent
CSD Containment seal drain
GBI Gas buffer IN

H75LG4-C

Features

  • API 682 Category 2 und 3, Type A, Arrangement 2 seal
  • Dual seal in face-to-back arrangement
  • Cartridge unit
  • Rotating multiple springs
  • Dry non-contact outer seal (containment seal)

Advantages

  • Universally applicable both for retrofits or original equipment
  • Efficient stock keeping due to standardized components
  • Extended selection of materials
  • Metal parts also in special materials available
  • Designed for vaporizing media
  • Operation close to vapor pressure

Operating range

Shaft diameter:
d1 = 20 … 110 mm (0.79" … 4.33")
Pressure: p1 = 20 bar (290 PSI)
Temperature:
t = -40 °C … +176 °C (-40 °F … +350 °F)
Sliding velocity:
vg = 4 ... 23 m/s (13 ... 76 ft/s)
Axial movement: ±1.0 mm

Materials

Seal rings: Blister resistant carbon
Mating rings:
Silicon carbide SSiC (Q1), RBSiC (Q2)
Secondary seals:
EPDM (E), NBR (P), FKM (V), FFKM (K)
Springs: Hastelloy® C-4 (M)* and C-276 (M5)
Metal parts: CrNiMo steel 316 (G) or equivalent, optional materials on request.

* EagleBurgmann standard

Standards and approvals

  • API 682 / ISO 21049
  • API 682 4th ed. Cat. 2/3 - 2NC-CS
  • API 682 4th ed. Cat. 1 - 2NC-CS

Recommended piping plans

Similar products

APItex-S

  • API 682 Category 1, Type A, Arrangement 1 seal
  • Single seal
  • Balanced
  • Cartridge unit
  • Independent of direction of rotation
  • Solid seal face
  • Solid seat

APItex-T

  • API 682 Category 1, Type A, Arrangement 2 or 3 seal
  • Dual seal in face-to-back arrangement
  • Balanced
  • Cartridge unit
  • Independent of direction of rotation
  • Solid seal faces
  • Solid mating rings

CGSH-KD

  • API 682 Category 2 and 3, Type A, Arrangement 3 seal
  • Dual seal in back-to-back arrangement
  • Cartridge unit
  • Independent of direction of rotation
    (with U-grooves)
  • Gas-lubricated
  • Contact free operation, no friction
  • Rotating multiple springs
Contact

Inquire about individual solutions

We develop and produce customer-specific special and individual solutions for every application.

Inquire now Discover reference projects
Back to the overview