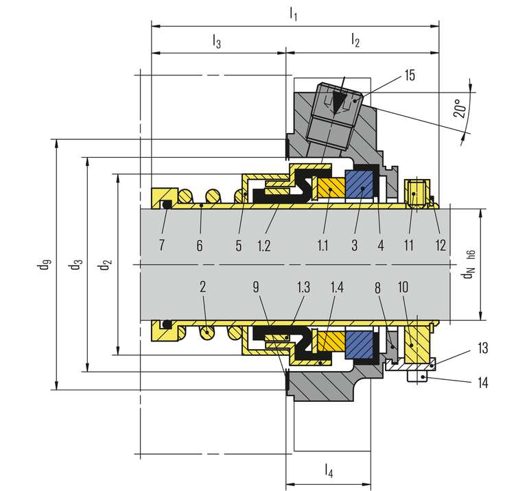
Item Description
1 Bellows unit
1.1 Seal face
1.2 Bellows
1.3 Drive collar
1.4 L-ring (spring collar)
2 Spring
3 Seat (G60)
4 O-Ring or corner sleeve
5 Spacer ring
6 Shaft sleeve
7 O-ring
8 Cover
9 Gasket
10 Drive collar
11 Set screw
12 Snap ring
13 Assembly fixture
14 Socket head screw
15 Screw plug

Unitex

Features

  • Single cartridge seal
  • Elastomer bellows
  • Unbalanced
  • Independent of direction of rotation
  • Rotating spring
  • Bellows and spring free from torsion
  • Metric and inch sizes available

Advantages

  • Straightforward and easy installation
  • Fits into any installation space due to smallest outer diameter
  • Important material certifications available
  • Universal application opportunities (standardization)
  • No modifications of the pump's installation chamber necessary
  • Economical cartridge solution
  • Comes with flush connection acc. to API 682, Plan 11 for seal chamber cleaning and cooling

Operating range

Shaft diameter:
dN = 25 … 75 mm (1" … 2.625")
Pressure: p1 = 12 bar (174 PSI)
Temperature:
t = -20 °C … 140 °C (-4 °F … 284 °F)
Sliding velocity: vg = 10 m/s (33 ft/s)
Axial movement: ±0.5 mm

Materials

Seal face: Carbon graphite resin impregnated (B), Silicon carbide (Q1)
Seat: Silicon carbide (Q1)
Secondary seals: FKM (V), EPDM (E)
Metal parts: CrNiMo steel (G), CrNiMo cast steel (G)

Standards and approvals

  • FDA
  • KTW
  • WRAS
  • W270
  • NSF
  • ACS

Similar products

Cartex Dual seals

  • Dual seal
  • Cartridge
  • Balanced
  • Independent of direction of rotation
  • Double pressure balanced
  • Integrated pumping device
  • Variants available: for eccentric screw pumps (-Vario) and gas-lubricated version (-GSDN)

Cartex Single seals

  • Single seal
  • Cartridge
  • Balanced
  • Independent of direction of rotation
  • Single seals without connections (-SNO), with flush (-SN) and with quench combined with lip seal (-QN) or throttle ring (-TN)
  • Additional variants available for ANSI pumps (e.g. -ABPN) and eccentric screw pumps (-Vario)

Cartex ANSI Single seals

  • Single seal
  • Available for standard (Cartex-ASPN) and big bore (Cartex-ABPN) seal chambers
  • Cartridge
  • Balanced
  • Independent of direction of rotation
  • Single seals with flush (-ASPN, -ABPN) and with quench combined with lip seal (-ASQN, -ABQN) or throttle ring (-ASTN, -ABTN)
Contact

Inquire about individual solutions

We develop and produce customer-specific special and individual solutions for every application.

Inquire now Discover reference projects
Back to the overview